Здесь вы найдёте описание предохранителей и реле Лексус ЛХ 470 со схемами блоков, фото примерами их исполнения и местами расположения. Выделим предохранитель прикуривателя.
Блоки в салоне
Блок предохранителей с левой стороны
Данный блок с предохранителями и реле расположен с левой стороны под панелью приборов.
Схема. Вариант 1.
1998 – 2002
Обозначение
За работу прикуривателя и розетки отвечают предохранители номер 3 и 22 на 15А.
С обратной стороны блока крепятся некоторые реле.
Схема
Расшифровка
Схема. Вариант 2.
2003 – 2007
Назначение
За работу прикуривателя и розетки отвечают предохранители номер 1 и 2 на 15А.
Схема реле с обратной стороны блока
Назначение
R1 – Обогрев заднего стекла (DEFOG)
R2 – Зажигание (IG1 NO.2)
R3 – Зажигание (ACC)
R4 – Освещение салона (DOME)
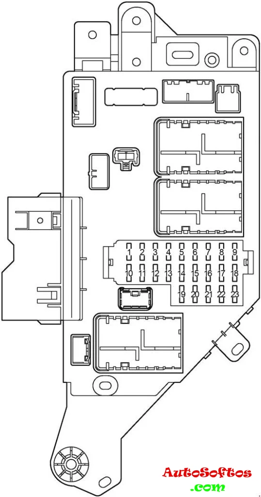
Блок предохранителей с правой стороны
Находится под панелью приборов со стороны пассажира.
Схема
2002 – 2007
Описание
Схема реле с обратной стороны блока
Расшифровка
R1 – Лампы стоп-сигнала (STOP LP)
R2 –
R3 – Зажигание (IG1 NO.3)
R4 – Отсечка зажигания (ACC CUT)
Блоки под капотом
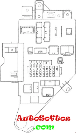
Блок предохранителей и реле
Расположен с левой стороны, рядом с аккумулятором.
Вариант 1
Схема
1998 – 2002
Назначение
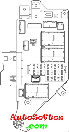
Вариант 2
Схема
2003 – 2007
Обозначение
Реле
Схема
Расшифровка
Блок на АКБ
На плюсовой клемме аккумуляторной батареи, крепится блок предохранителей выполненный в виде плавких вставок.
Схема

Доллар - 76.50 
Евро - 91.70 