Предохранители Toyota Land Cruiser 100 - 105 и реле
- Разместил: klays067;
- Прочитано: 108;
- Дата: 5-01-2026, 15:42;
-
-


Здесь мы покажем расположение электронных блоков управления, описание предохранителей и реле Тойота Ленд Крузер 100 (105) со схемами блоков и местами их расположения. Выделим предохранитель прикуривателя.
Блоки в салоне
Расположение
Общая схема расположения блоков в салоне
Левый руль (1998 — 2002)
Левый руль (2003 — 2007)
Правый руль
Описание
- ’98-’02: Реле указателей поворота
- ’98-’02: Блок предохранителей
’02-’07: Блок предохранителей / Блок кузовной электроники
- ’98-’02: Блок управления ABS
- Блок управления регулировками положения рулевой колонки
- Компьютер транспондера ключа
- ’98-’02: Блок управления блокировкой дверей
- ’98-’02: Блок Electronic Toll Collection
- ’98-’02: Блок управления подвеской
- Усилитель транспондера ключа
- ’98-’02: Блок управления панелью инструментов
- Блок управления противоугонной системой
- Реле автоматической антенны
- Блок управления двигателем и коробкой передач
- Реле блокировки межосевого дифференциала
- ’98-’02: Блок управления блокировкой переднего и заднего дифференциала
или Блок управления блокировкой заднего дифференциала
- ’98-’02: Блок управления круиз-контролем
- ’98-’02: Распределительный блок (Реле MTR)
’02-’07: Блок предохранителей
- ’98-’02: Блок управления вспомогательным подогревателем
- ’98-’02: Центральный блок управления
- ’98-’02: Датчик замедления
- Центральный блок подушек безопасности
- ’98-’02: Реле активной системы управления высотой расположения кузова (AHC)
- ’98-’02: Правый руль: Таймер подогрева
- ’02-’07: Блок управления кондиционером (при наличии навигации)
- ’02-’07: Распределительный блок
- ’02-’07: Распределительный блок
- ’02-’07: Распределительный блок
- ’02-’07: Распределительный блок
- ’02-’07: Блок сетевого шлюза
- ’02-’07: Блок управления блокировкой селектора коробки передач
- ’02-’07: Блок управления кондиционером (без навигации)
- ’02-’07: Блок управления ABS & BA & TRAC & VSC
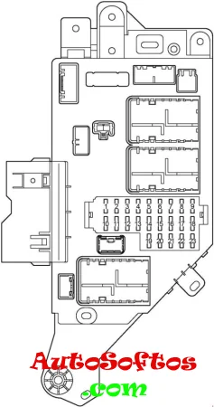
Блок предохранителей с левой стороны
На общей схеме обозначен под номером 2.
Схема. Вариант 1.
1998 — 2002
Обозначение
| 1. |
10A MIRR — Зеркала с электроприводом |
| 2. |
15A SRS — Подушки безопасности, ремни безопасности с преднатяжителем |
| 3. |
15A CIGAR — Прикуриватель, аудиосистема, антенна |
| 4. |
10A IGN — Система распределенного впрыска топлива/система последовательного распределенного впрыска топлива, ABS, подушки безопасности, ремни безопасности с преднатяжителем, предупреждающий световой сигнал разрядки |
| 5. |
40A POWER — Центральный замок, стеклоподъемники, люк, сиденья с электроприводом, система регулировки наклона и высоты рулевой колонки |
| 6. |
10A DOME — Освещение салона, персональное освещение |
| 7. |
20A AHC-IG — Активная система управления высотой расположения кузова (AHC) |
| 8. |
20A DIFF — Блок управления блокировкой дифференциала |
| 9. |
15A GAUGE — Комбинация приборов, сервисные и предупреждающие индикаторы, предупреждающий зуммер, лампы заднего хода, кондиционер, блок управления коробкой передач, дневные ходовые огни, система беспроводного управления |
| 10. |
20/25A WIPER — Стеклоочиститель и омыватель, стеклоочиститель и омыватель заднего стекла |
| 11. |
7,5A I/UP — Система холостого хода двигателя |
| 12. |
15A FR FOG — Передний противотуманный свет |
| 13. |
15A STOP — Лампы стоп-сигнала, дополнительный стоп- сигнал |
| 14. |
30A RR A.C — Задний кондиционер |
| 15. |
20A DEFOG — Обогрев заднего стекла |
| 16. |
15A ECU-B — Система регулировки наклона и высоты рулевой колонки, дневные ходовые огни, противоугонная система |
| 17. |
15A TAIL — Габаритный свет, освещение номерного знака, подсветка панели приборов |
| 18. |
15A AHC-B — Активная система управления высотой расположения кузова (AHC) |
| 19. |
10A OBD — Диагностический разъем |
| 20. |
10A RR HTR — Задний отопитель |
| 21. |
15A ECU-IG — ABS, блокировка селектора коробки передач, сиденья с электроприводом, антенна, система регулировки наклона и высоты рулевой колонки |
| 22. |
15A PWR OUTLET — Розетка |
За работу прикуривателя и розетки отвечают предохранители номер 3 и 22 на 15А.
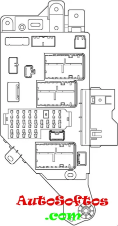
С обратной стороны блока крепятся некоторые реле.
Схема
Расшифровка
| R1. |
Топливный насос (C/OPN) |
| R2. |
Топливный насос (FUEL/PMP) |
| R3. |
(D/L (L)) |
| R4. |
(SPIL/VLV) |
| R5. |
Стартер (ST/CUT) |
| R6. |
(D/L (U)) |
| R7. |
Передний противотуманный свет (FR FOG) |
| R8. |
— |
| R9. |
Обогрев заднего стекла (DEFOG) |
| R10. |
Стеклоподъемники, люк (POWER) |
| R11. |
Задний отопитель (RR HTR) |
| R12. |
Освещение салона (DOME) |
| R13. |
Габаритный свет (TAIL) |
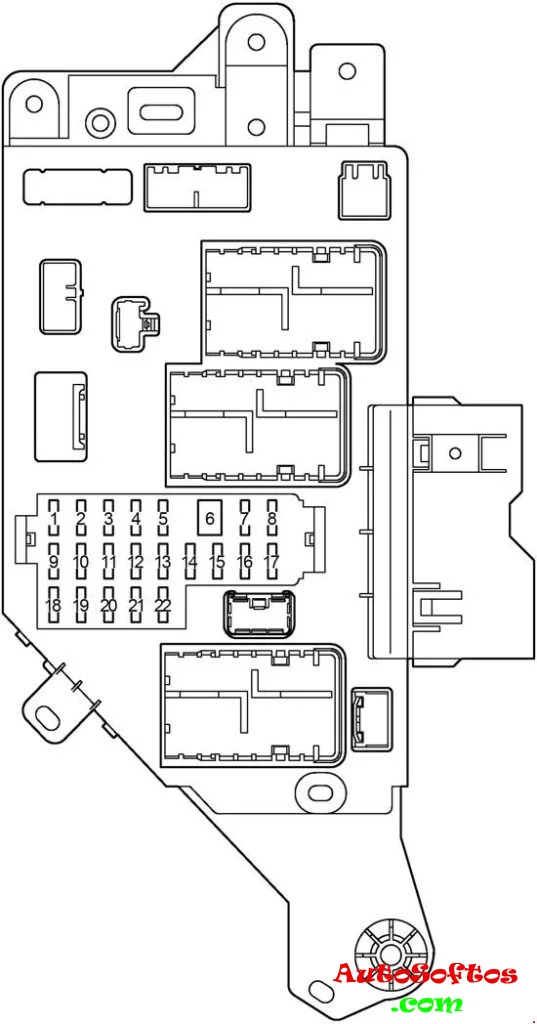
Схема. Вариант 2.
2003 — 2007
Назначение
| 1. |
15A PWR OUTLET — Розетка |
| 2. |
15A CIG — Прикуриватель |
| 3. |
7,5A ACC — Подсветка панели приборов |
| 4. |
7,5A AM1 — Система распределенного впрыска топлива/система последовательного распределенного впрыска топлива |
| 5. |
20A DEFOG — Обогрев заднего стекла |
| 6. |
15A AHC−B — Активная система управления высотой расположения кузова (AHC) |
| 7. |
20A FUEL HTR — Подогрев топлива |
| 8. |
7,5A POWER HTR — Вспомогательный отопитель |
| 9. |
20A AHC−IG — Активная система управления высотой расположения кузова (AHC) |
| 10. |
10A EFI NO.2 — Система снижения токсичности |
| 10A ECD NO.2 — Система снижения токсичности |
| 11. |
10A GAUGE1 — Комбинация приборов |
| 12. |
10A ECU−IG1 — Система распределенного впрыска топлива/ система последовательного распределенного впрыска топлива |
| 13. |
10A ECU−B1 — Навигационная система |
| 14. |
15A DBL LOCK — Система двойной блокировки |
| 15. |
30A BATT CHARGE — Система зарядки прицепа |
| 16. |
15A A/C — Кондиционер |
| 17. |
15A STOP — Лампы стоп-сигнала |
| 18. |
7,5A OBD−2 — Диагностический разъем |
| 19. |
7,5A IDEL UP — Система холостого хода двигателя |
| 20. |
30A LH SEAT — Электропривод левого сиденья |
| 21. |
25A DOOR — Центральный замок, стеклоподъемники |
| 22. |
25A SUN ROOF — Люк |
| 23. |
15A RR WIPER — Задний стеклоочиститель |
За работу прикуривателя и розетки отвечают предохранители номер 1 и 2 на 15А.
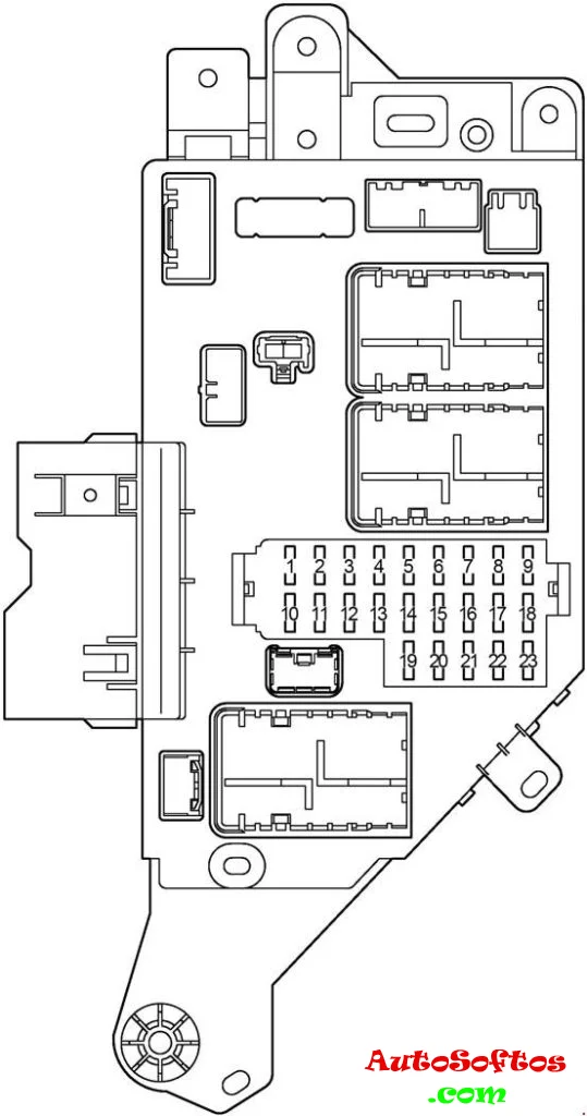
Схема реле с обратной стороны блока
Назначение
- R1 — Обогрев заднего стекла (DEFOG)
- R2 — Зажигание (IG1 NO.2)
- R3 — Зажигание (ACC)
- R4 — Освещение салона (DOME)
Блок предохранителей с правой стороны
На схеме обозначен под номером 17. Находится под панелью приборов со стороны пассажира.
Схема
2002 — 2007
Описание
| 1. |
10A ECU−B2 — Центральный замок, стеклоподъемники |
| 2. |
20A DIFF — Система полного привода |
| 3. |
15A WASHER — Омыватель стекла |
| 4. |
10A RADIO — Аудиосистема |
| 5. |
10A DOME — Освещение салона |
| 6. |
40A VGRS — Рулевое управление с переменным передаточным числом |
| 7. |
20A P/W (FL) — Передний левый стеклоподъемник |
| 8. |
20A P/W (RL) — Задний левый стеклоподъемник |
| 9. |
25A WIPER — Стеклоочиститель |
| 10. |
10A ECU−IG2 — Задний кондиционер |
| 11. |
15A SEAT HTR — Подогрев сидений |
| 12. |
10A GAUGE2 — Лампы заднего хода |
| 13. |
7,5A MET — Комбинация приборов |
| 14. |
7,5A ING — Система распределенного впрыска топлива/ система последовательного распределенного впрыска топлива |
| 15. |
7,5A SECURITY — Противоугонная система |
| 16. |
20A P/W (RR) — Задний правый стеклоподъемник |
| 17. |
20A P/W (FR) — Передний правый стеклоподъемник |
| 18. |
30A BATT CHARGE — Система зарядки прицепа |
| 19. |
— |
| 20. |
20A TIL&TEL — Система регулировки наклона и высоты рулевой колонки |
| 21. |
30A RR A/C — Задний кондиционер |
| 22. |
30A RH SEAT — Электропривод правого сиденья |
Схема реле с обратной стороны блока
Расшифровка
- R1 — Лампы стоп-сигнала (STOP LP)
- R2 —
- R3 — Зажигание (IG1 NO.3)
- R4 — Отсечка зажигания (ACC CUT)
Дополнительные элементы
Схема
Обозначение
- Блок управления люком
- RHD: Блок управления зеркалами с электроприводом
- Усилитель аудиосистемы
- Усилитель кондиционера
- Реле заднего вентилятора
- Вариант 1: Реле заднего стеклоочистителя
- Реле сцепного устройства
- Реле прицепа
- Блок управления топливным насосом
- Реле выбора топливного насоса
- Реле принудительного включения дополнительного топливного насоса
- ’02-’07: Блок управления монитором заднего вида
- ’02-’07: Блок управления навигацией
- Реле заднего отопителя
- Управляющий клапан
- LHD: Блок управления зеркалами с электроприводом
- Вариант 2: Реле заднего правого стеклоочистителя
- Вариант 2: Реле заднего левого стеклоочистителя
Блоки под капотом
Расположение
Общая схема расположения блоков под капотом
Описание
- Блок управления форсунками (EDU)
- Главное реле лебедки
- Реле свечей накала
- Блок предохранителей и реле
- Блок силовых предохранителей
- Блок управления левой фарой
- Реле вспомогательного отопителя
- Реле-выключатель по температуре охлаждающей жидкости
- Реле вентилятора кондиционера
- Реле очистителей фар
- Блок управления правой фарой
- Блок силовых предохранителей (холодная зона)
- Реле дневных ходовых огней №3
- Реле подогревателя на впуске
Блок предохранителей и реле
Расположен с левой стороны, рядом с аккумулятором.
Вариант 1
Схема
1998 — 2002
Назначение
| Предохранители |
| 1. |
20A AM1 NO.2 — Система запуска, указатели поворота, аварийная сигнализация, предохранители: ”CIGAR”, ”ECU−IG”, ”MIRR”, ”SRS” |
| 2. |
20A A.C — Кондиционер |
| 3. |
10A POWER HTR — Вспомогательный отопитель |
| 4. |
15A SEAT HTR — Подогрев сидений |
| 5. |
20A FUEL HTR — Подогрев топлива |
| 6. |
15A MIR HTR — Обогрев зеркал |
| 7. |
20A HEAD CLNER — Очистители фар |
| 8. |
20A CDS FAN — Вентилятор системы охлаждения |
| 9. |
20A EFI — Система распределенного впрыска топлива/ система последовательного распределенного впрыска топлива, система снижения токсичности, топливный насос |
| 20A ECD — Система распределенного впрыска топлива/ система последовательного распределенного впрыска топлива |
| 10. |
10A HORN — Звуковой сигнал |
| 11. |
15A THROTTLE — Электронная система управления дроссельной заслонкой |
| 12. |
20A RADIO — Аудиосистема |
| 13. |
15A HAZ-TRN — Аварийная сигнализация, указатели поворота |
| 14. |
30A AM2 — Система запуска, система распределенного впрыска топлива/ система последовательного распределенного впрыска топлива, предохранитель ”IGN” |
| 15. |
20A ECU-B1 — Центральный замок, стеклоподъемники, задний стеклоочиститель и омыватель, система беспроводного управления, зеркала с электроприводом, комбинация приборов, кондиционер, система автоматического освещения, противоугонная система |
| 16. |
20A HEAD (LH-UPR) — Дальний левый свет |
| 17. |
20A HEAD (RH-UPR) — Дальний правый свет |
| 18. |
10A HEAD (LH-LWR) — Ближний левый свет, передний противотуманный свет |
| 19. |
10A HEAD (RH-LWR) — Ближний правый свет |
| 20. |
40A 1998-1999: ABS |
| 50A 2000-2003: ABS |
| 21. |
50A AHC — Активная система управления высотой расположения кузова (AHC) |
| 22. |
50A ACC — Предохранитель «PRW OUTLET» |
| 23. |
80A AM1 NO.1 — Система зарядки, предохранители: ”AM1 NO.2”, ”GAUGE”, ”WIPER” |
| 24. |
60A HTR — Кондиционер |
| 25. |
80A GLOW — Система предпускового подогрева двигателя |
| 26. |
40A ABS |
| 27. |
30A STARTER — Система запуска |
| Реле |
| R1. |
Муфта компрессора кондиционера (MG CLT) |
| R2. |
Обогрев зеркал (MIR HTR) |
| R3. |
Вспомогательное реле (ACC) |
| R4. |
Активная система управления высотой расположения кузова (AHC) |
| R5. |
Зажигание (IG1 NO.1) |
| R6. |
Зажигание (IG1 NO.2) |
| R7. |
ABS (ABS SOL) |
| R8. |
Блок управления двигателем (EFI) |
| Блок управления двигателем (ECD) |
| R9. |
Звуковой сигнал |
| R10. |
Диммер (переключатель освещения) |
| R11. |
Стартер |
| R12. |
ABS (ABS MTR2) |
| R13. |
Фары (HEAD) |
| R14. |
ABS (ABS MTR1) |
Вариант 2
Схема
2003 — 2007
Обозначение
| 1. |
— |
| 2. |
— |
| 3. |
— |
| 4. |
— |
| 5. |
7,5A ST1 — 2002-2005: Система распределенного впрыска топлива /система последовательного распределенного впрыска топлива |
| 7,5A WIP−S — 2006-2007: — |
| 6. |
30A TOWING — Освещение прицепа |
| 7. |
15A MIR HTR — Обогрев зеркал |
| 8. |
10A RR HTR — Задний отопитель |
| 9. |
15A HAZ−TRN — Аварийная сигнализация, указатели поворота |
| 10. |
7,5A ALT−S — Система зарядки |
| 11. |
20A NV−IR |
| 12. |
15A FR FOG — Противотуманный свет |
| 13. |
30A TOWING BRK — Освещение прицепа (лампы стоп-сигнала) |
| 14. |
20A HEAD CLNER — Очистители фар |
| 15. |
10A FR−IG — Система зарядки |
| 16. |
7,5A PANEL — Подсветка панели приборов |
| 17. |
30A TOWING TAIL — Освещение прицепа (габаритный свет) |
| 18. |
15A TAIL — Габаритный свет |
| 19. |
30A BAT — Предохранитель: «ECU−B2” |
| 20. |
7,5A TEL — Телефон |
| 21. |
30A AMP — Аудиосистема |
| 22. |
25A EFI NO.1 — Система распределенного впрыска топлива /система последовательного распределенного впрыска топлива |
| 25A ECD NO.1 — Система распределенного впрыска топлива /система последовательного распределенного впрыска топлива |
| 23. |
15A AM2 — Предохранитель: «IGN” |
| 24. |
10A ETCS — Система распределенного впрыска топлива/ система последовательного распределенного впрыска топлива |
| 25. |
10A HORN — Звуковой сигнал |
| 26. |
— |
| 27. |
10A HEAD (RH−LWR) — Ближний правый свет |
| 28. |
10A HEAD (LH−LWR) — Ближний левый свет |
| 29. |
20A HEAD (RH−UPR) — Дальний правы свет |
| 30. |
20A HEAD (LH−UPR) — Дальний левый свет |
| 31. |
40A ABS |
| 32. |
50A ABS |
| 33. |
50A AHC — Активная система управления высотой расположения кузова (AHC) |
| 34. |
30A STARTER — Система запуска |
| 35. |
SHORT PIN A — Предохранители: «BAT», «AMP» |
| 36. |
SHORT PIN B — Предохранители: «HAZ-TRN», «ALT-S» |
| 37. |
80A GLOW — Система предпускового подогрева двигателя |
| Реле |
| R1. |
Отопитель (HTR) |
| R2. |
ABS (ABS MTR1) |
| R3. |
ABS (ABS MTR2) |
| R4. |
ABS (ABS SOL) |
| R5. |
Блок управления двигателем (EFI) |
| Блок управления двигателем (ECD) |
| R6. |
Активная система управления высотой расположения кузова (AHC) |
| R7. |
Топливный насос (C/OPN) |
| R8. |
Топливный насос (F/PUMP) |
| R9. |
Стартер (ST) |
Реле
Схема
Расшифровка
| R1. |
Реле-выключатель по температуре охлаждающей жидкости |
| R2. |
Муфта компрессора кондиционера (MG CLT) |
| R3. |
Вентилятор системы охлаждения (CDS FAN) |
| R4. |
Звуковой сигнал |
| R5. |
Фары (HEAD) |
| R6. |
Дальний свет (HEAD HI) |
| R7. |
Обогрев зеркал (MIR HTR) |
| R8. |
Задний отопитель (RR HTR) |
| R9. |
Подсветка панели приборов (PANEL) |
| R10. |
Передний противотуманный свет (FR FOG) |
| R11. |
Зажигание (IG NO.1) |
| R12. |
Габаритный свет (TAIL) |
Блок на АКБ
На плюсовой клемме аккумуляторной батареи, крепится блок предохранителей выполненный в виде плавких вставок.
Схема
Описание
Вариант 1
1998 — 2002
| 1. |
100A J/B NO.2 — Предохранители: ”ECU−B”, ”FR FOG”, ”DEFOG”, ”AHC−B”, ”TAIL”, ”STOP”, ”DOME”, ”POWER”, ”OBD”, ”RR A.C” and ”RR HTR” |
| 2. |
140A ALT — Предохранители: ”J/B NO.2”, ”MIR HTR”, ”AM1 NO.1”, ”ACC”, ”CDS FAN”, ”HTR” and ”ABS NO.1” |
| 3. |
100A MAIN — Предохранители: «ECU-B», «FR FOG», «DEFOG’, «AHC-B», «OBD», «TAIL», «STOP», «DOME\ TOWER», «RR AC», «RR HTR» |
| 4. |
7,5A ALT-S — Система зарядки |
Вариант 2
2003 — 2007
| 1. |
50A HTR — Кондиционер / отопитель |
| 2. |
120A J/B NO.1 — Реле «IG1 NO.1», реле «TAIL», предохранители: «MIR HTR», «RR HTR», «TOWING BRK», «TOWING», «FR FOG» |
| 3. |
120A J/B NO.2 — Реле «IG1 NO.2», реле «ACC», предохранители: «DEFOG», «AM1», «LH SEAT», «STOP», «ECU-B1», «SUN ROOF», «OBD-2», «DOOR» |
| 4. |
120A J/B NO.3 — Реле «IG1 NO.3», предохранители: «SECURITY», «TIL & TEL», «RH SEAT», «RR A/C», «P/W (RR)», «P/W (RL)», «P/W (FR)», «P/W (FL)» |
| 5. |
120A MAIN — Реле «HEAD HI», реле «HEAD», предохранители: «ABS NO.1», «ABS NO.2», «SHORT PIN A», «EFI OR ECD NO.1», «SHORT PIN B», «AM2», «STARTER», «HORN», «ECTS» |
| 6. |
140A ALT — Предохранители: «J/B NO.1», «J/B NO.2», «J/B NO.3», «HTR» |
Внимание! Нажимая на ссылку «скачать» Вы обязуетесь, после ознакомления, удалить скаченный файл со своего компьютера.
Всё содержимое сайта autosoftos.com взято из свободных источников, и также свободно распространяется.
Если это Вы являетесь автором данного материала, то, пожалуйста, свяжитесь с нами, для того чтобы обеспечить пользователям, приятную и удобную альтернативу, после ознакомления, покупки качественного «оригинала» непосредственно от издателя. Администрация сайта не несёт никакой ответственности за противоправные действия, и какой либо ущерб, понесённый правообладателями.

- 1
Дополнительно по данной категории
Информация
Посетители, находящиеся в группе Гости, не могут оставлять комментарии к данной публикации.
|